Il territorio di Iglesias ha restituito tracce di continuità abitativa fin dall'età preistorica. Ad attestare l'origine dell'abitato fin dall'età bizantina è la chiesa cruciforme di San Salvatore. L'edificio, che risale al IX-XI secolo, è il più antico di Iglesias ed è restato a lungo in stato di abbandono venendo, infine, utilizzato come cantina domestica.
Solo in tempi recenti è entrato a far parte del patrimonio del Comune di Iglesias e si è proceduto al suo recupero e valorizzazione.
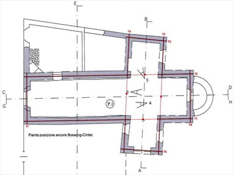
La pianta cruciforme si sviluppa per una lunghezza di 25 m. La navata principale interseca il transetto con un angolo solo apparentemente retto; in realtà, i corpi di fabbrica si incrociano con un angolo di cento gradi.
Nella facciata si apre un portale del tipo architravato semplice gravante sulla murature perimetrali. Il secondo accesso all'edificio è tramite un portale del tipo centinato a tutto sesto, nella testata del braccio destro del transetto. Un terzo accesso alla chiesa è stato di recente identificato lungo il lato sinistro del transetto.
I bracci sono voltati a botte, mentre nel punto di incrocio si innalza un tiburio coperto da tetto a spioventi, ma originariamente concluso anch'esso con una volta a botte.
La tecnica edilizia è piuttosto curata, con uso di grandi blocchi ben squadrati negli angoli esterni dei bracci e di pietre di dimensioni inferiori nella tessitura dei paramenti murari. Dall'analisi della muratura, classificabile come "opus incertum", emerge anche il largo uso di mattoni in cotto di almeno due tipi: il più antico rispetta l'unità di misura bizantina, il cosidetto piede bizantino, l'altra risulta di origine e realizzazione autoctona.
L'intero edificio, che versava in pessime condizioni e privo di puntelli, è stato recentemente oggetto di restauro e consolidamento strutturale attraverso numerosi interventi descritti in dettaglio nella scheda di intervento allegata e riassunti in seguito.
L’intervento di consolidamento con tecnologia Bossong, che fa parte di un più ampio piano di recupero dell’edificio (comprendente rifacimento delle sottomurazioni, della copertura lignea, degli intonaci, delle pavimentazioni ecc.), è stato impiegato, come evidenziato nel progetto di interventi, per la cucitura delle lesioni esistenti e la connessione tra le pareti perimetrali, trasversali e longitudinali, tramite l’inserimento di barre in acciaio inox, inserite nello spessore della muratura, previa perforazione mediante sonda diamantata, in asse alla muratura.
L’intervento con calza Bossong è risultato quindi poco intrusivo e localizzato in un piccolo volume cilindrico intorno all’ancoraggio, limitando gli eventuali problemi che possono nascere a causa della reazione del materiale iniettato con la muratura; inoltre, l’aderenza della malta al supporto, garantita per tutta la lunghezza in cui viene inserito il tirante, permette una omogenea distribuzione degli sforzi, per cui non è stato più necessario inserire elementi di ancoraggio alle estremità della barra, quali capochiave a chiavistello o piastre; in questo modo è possibile effettuare un intervento del tutto invisibile che permette di mantenere inalterato l’aspetto originario dell’edificio e di non danneggiare la cortina muraria esistente.
DESCRIZIONE DELL’INTERVENTO:
- ancoraggi orizzontali passanti con doppio bulbo di malta inghisati, tramite manicotto tenditore, nella parte di barra a vista in corrispondenza dell’apertura dell’arcata del transetto, ad ancoraggio cieco iniettato con calza per il consolidamento delle murature perimetrali della navata principale - lunghezza totale 16,50m (11,70m+4,80m)- inseriti nello spessore della muratura, con iniezioni effettuate da entrambe le estremità dell’ancoraggio e manicotto tenditore di giunzione a vista;
ANCORAGGI > mod. GBOS 20-60 P costituiti da barra tipo GBOS 20/304 in acciaio inossidabile AISI 304 con filettatura continua su tutta la lunghezza, complete di calza per il controllo dell’iniezione della malta, appositi tubicini di iniezione, connessioni (manicotti di giunzione) in acciaio inossidabile AISI 316 (A4) e malta Presstec specifica per iniezioni con calza
- ancoraggi orizzontali ciechi iniettati con calza inghisati, tramite manicotto tenditore, nella parte di barra a vista in corrispondenza dell’apertura dell’arcata della navata principale, ad ancoraggio cieco iniettato con calza per il consolidamento delle murature perimetrali del transetto - lunghezza totale 11,60m (5,80m+6,00m)- inseriti nello spessore della muratura, con iniezioni effettuate dalla testa dell’ancoraggio e manicotto tenditore di giunzione a vista;
- ancoraggi orizzontali ciechi iniettati con calza di malta per il consolidamento delle pareti di facciata - lunghezza totale variabile da 4,00 a 5,00m - inseriti nello spessore della muratura, con iniezioni effettuate dalla sola testa dell’ancoraggio libero;
ANCORAGGI > mod. GBOS 20-60 P costituiti da barra tipo GBOS 20/304 in acciaio inossidabile AISI 304 con filettatura continua su tutta la lunghezza, complete di calza per il controllo dell’iniezione della malta, appositi tubicini di iniezione e malta Presstec specifica per iniezioni con calza
- perforazioni orizzontali realizzate con carotatrici con sonda diamantata con funzionamento a sola rotazione - lunghezza da 4,00 a 11,70m.
Committente: Parrocchia di San Salvatore Iglesias (Ca)
Progettazione: Ing. Alessio BelluImpresa esecutrice delle opere: Impresa Pilloni – Collinas (Ca)
Perforazione e Posa: Termodelta di R. Oggiano – Dolianova (Ca) - Installatore Certificato Bossong spa
Fornitura e consulenza tecnologia Bossong: Bossong spa - Grassobbio (Bg)
In collaborazione con Buccellato srl – Cagliari